Palacio Subercaseaux

Arquitectos Mathias Klotz, Pablo Gimeno

La propuesta para la rehabilitacion del edificio Subercaseaux, es la de construir un segundo cuerpo arquitectonico que se configure desde el interior del cuerpo de fachadas ya existente,

La propuesta contempla la restauracion de las cuatro fachadas existentes y la recuperación de la mansard, revestida en cobre con perforaciones de densidad variable que tamizan la luz y devuelven al edificio su perfil original

En los planos verticals, se ordenan los vanos de la fachada Cochrane y laterales siendo estas ultimas intervenidas de manera de dejar el ladrillo visto y los vanos relacionados con la actividad interior.

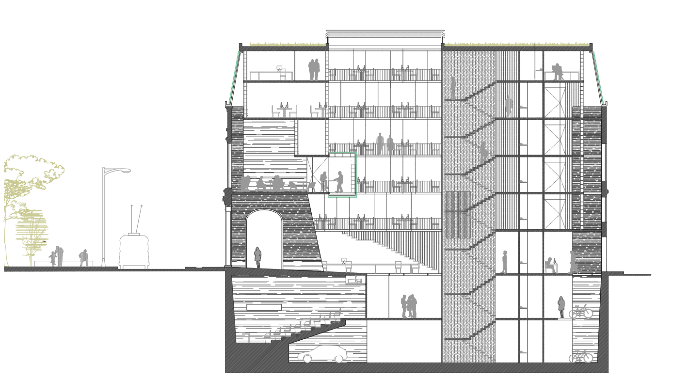
El proyecto se ordena a partir de un vacio central que alberga diferentes usos según el nivel, y un vacío perimetral que permite relaciones directas entre todos los niveles y entre estos y la fachada.

El vacío central se corona con una gran lucarna translúcida de vidrio fotovoltáico, la cual permite el paso de una luz tamizada, además de aportar energía a la climatización del edificio. El flujo de aire caliente ascendente, se contola por celosias que regulan su paso, cerrandose en días frios y abriéndose en días de calor.

El programa se desarrolla en una serie de planos horizontales que en la mayor parte de su perimetro no tocan la fachada interiormente con la idea de: por una parte generar los vacíos laterales necesarios para dar paso a la luz y ventilacion natural a los diferentes niveles y por otra provocar una situacion de abalconamiento al interior del edificio

Estos planos horizonales albergan todas las actividades programaticas requeridas sobre una configuracion de planta libre donde se han priviligiado las

circulaciones en y entre pisos, la modularidad de las unidades, la iluminacion y ventilacion natural y la continuidad de los cielos.

La circulacion vertical y los servicios se han configurado sobre un nucleo compacto de ascensores escaleras y baños, este nucleo coloca los ascensores y en una caja que deja entrever hacia el vacio central las circulaciones a traves de una malla metalica que reviste estos elementos, con el objeto de recrear la

atmósfera de los antigüos ascensores de edificios, toda vez que permitir el libre paso de las vistas y de la luz.

A nivel de acceso publico, se ha privilegiado un solo nivel de piso y una doble altura en gran parte de la planta, con el objetivo de establecer una relacion clara entre el publico, y las oficinas de informaciones y atención.

Bajo el nivel de calle se sitúa el auditorio y foyer central el cual se ilumina naturalmente a traves del pavimento traslúcido del hall central

En el nivel tres, hacia la calle Serrano está la cafetería de funcionarios, la cual hace uso del balcón existente en la fachada y se sirve desde una caja semi transparente que cuelga hacia el vacio central.

Anterior
Anterior

Casa Puluqui

Siguiente
Siguiente

Aula Magna Escuela Naval